
Büro- und Werkstattgebäude Müller Gönnern, Frankfurt am Main
Neubau eines Büro- und Werkstattgebäudes
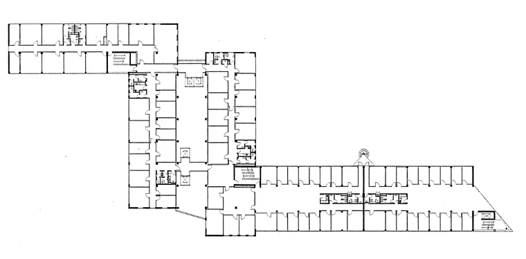
Das Büro- und Werkstattgebäude liegt innerhalb einer für Gewerbezonen üblichen, aber räumlich und architektonisch wenig attraktiven Umgebung im Westen Frankfurts. Der Z- förmige Grundstückzuschnitt führte zur Anlage zweier L- förmiger Gebäude mit dazwischenliegender, glasüberdeckter Halle. Bis zu 27 Mietparteien werden über zwei offen geführte Aufzugsgruppen in dieser Halle erschlossen. Ein Treppenhaus mit Aufzug an der Nordspitze erschließt fünf weitere Mietbereiche.
Die stetige Veränderung gewerblicher Arbeitsplätze, weg von den Blaumännern hin zu "white collar jobs", hat bei dem Entwurf zu diesem Mietobjekt eine entscheidende Rolle gespielt. Das Ergebnis sind multifunktionale Flächen mit strukturell reversiblen Kommunikationstechniken. So sind gewerbliche Grossraumlösungen ebenso möglich wie Kombibüros oder klassische Zwei- bzw. Dreispänner.
Architektonisch integrierte Systeme zur Lenkung von Tageslicht gewährleisten sowohl innerhalb der Halle als auch für den Nordflügel einen hohen Anteil natürlichen Tageslichts für die angrenzenden Büros. In der Halle wird dies durch einen hohen lichtreflektierenden Wandflächenanteil bei gleichzeitig kleinem Fensteranteil in den oberen Geschossen und durch eine Vollverglasung im Erdgeschoß erreicht. Im nördlichen, vergleichsweise tiefen Baukörper lenken feststehende "lightcatcher" das Zenithlicht wirkungsvoll in die Tiefe der Räume. Gleichzeitig wirken diese Lochblech-Elemente als außenliegender Sonnen- und Blendschutz. Die synergetische Nutzung technischen Aufwands gilt auch für die Lüftung und Heizung der Halle: sie erfolgt über die Rückluft der angrenzenden Büros; so kann in den Büros das Abluft- Kanalsystem eingespart werden. Die Abluft wird an der obersten Stelle der Halle zentral abgesaugt und einer Wärmerückgewinnung zugeführt.
Das Gebäude ist dreigeschossig unterkellert, die Baugrube wurde mit einer Schlitzwand als Wanne ausgeführt, wodurch eine Absenkung des Grundwasssers mit der entsprechend aufwendigen Wasserhaltung entfallen konnte.











