
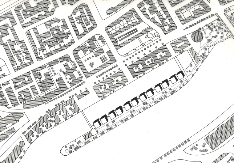
Mole Westhafen, Frankfurt am Main
Gutachten
Der Frankfurter Westhafen wurde in der zweiten Hälfte des 19. Jahrhunderts für den wachsenden Güterumschlag der Messe- und Handelsstadt gebaut. Schon bald erwies sich der Hafen als zu klein, der Osthafen entstand. Mancherlei maritime Elemente, Zeichen und Relikte erinnern auch heute noch an diese wechselvolle Geschichte. Seit den fünfziger Jahren teilen sich Industrie, Handel und Wassersport die Fläche des Westhafens.
Mit der städtebaulichen Entwicklung des Gebietes um Amsterdamer und Rotterdamer Werft eröffnen sich für Frankfurt einzigartige Möglichkeiten des Wohnen und Arbeitens. Hier konnte sich die spürbare besondere Geschichte des Ortes fortsetzen und einen Ort schaffen, der Frankfurt in ganz neuer Weise mit dem Main zusammenbringt.
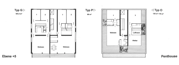
Die innere Erschließung der Häuser ist darauf angelegt, ihren Anteil an Außenwandflächen gegenüber der Entwurfsvorgabe zu reduzieren; hierdurch bleibt ein hohes Maß an gut belichteten Flächen für die Eigentumswohnungen frei. Gleichzeitig nutzt die Erschließung die inneren, vergleichsweise schwach belichteten Kernflächen.
Ein allgemein zugänglicher Steg hafenseitig unmittelbar entlang der Mole verbindet alle Doppelhäuser miteinander. Er ist erreichbar über Abgänge aus den Zonen zwischen den Doppelhäusern.











